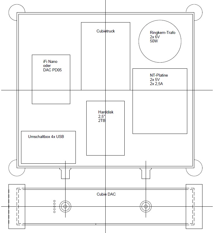
für das Forentreffen werden wir einen Cubietruck mit DAC eingebaut in ein hübsches Gehäuse vorbereiten.
Eine Kalkulation kann hier runtergeladen werden:
images/Upload/bilder/Forumsprojekte/Cub ... k_dac.xlsx
Und schonmal vorab eine Zeichnung noch ohne Bemaßung:

Viel Spaß beim Nachbau.


